$2,310
3 Bed
3 Bath
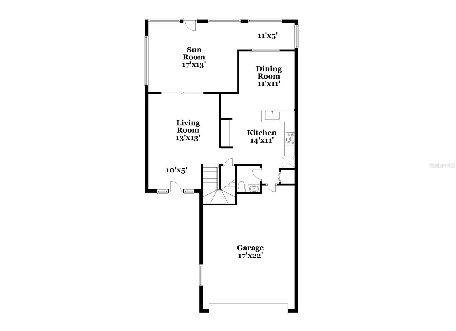
1,564 Sqft
0.09 Acre Lot

6742 Brittany Chase Ct, Orlando, Florida 32810

  • Residential Lease Property Type
  • 1,564 Sqft Square Footage
  • 1992 Year Built
Property Description

Welcome to your dream home! Step inside this pet-friendly home featuring modern finishings and a layout designed with functionality in mind. Enjoy the storage space found in the kitchen and closets as well as the spacious living areas and natural light throughout. Enjoy outdoor living in your yard, perfect for gathering, relaxing, or gardening! Take advantage of the incredible location, nestled in a great neighborhood with access to schools, parks, dining and more. Don’t miss a chance to make this house your next home! Beyond the home, experience the ease of our technology-enabled maintenance services, ensuring hassle-free living at your fingertips. Help is just a tap away!

Basic Details
Residential Lease
For Rent
O6353424
$2,310
3
3
1
1,564 Sqft
1992
0.09 Acre
Active
2
Single Family Residence
Features
: Central
: Central Air
: Kitchen/Family Room Combo, Ceiling Fans(s), Vaulted Ceiling(s), Cathedral Ceiling(s)
: None
: Cable Available, Electricity Available, Water Available, Sewer Available
Appliances
: Dishwasher, Microwave, Refrigerator, Cooktop
Address Map
US
FL
Orange
Orlando
VICTORIA CHASE
32810
BRITTANY CHASE
6742
COURT
W82° 34' 25.8''
N28° 37' 18.7''
Head south on Magnolia Homes Rd toward Alpert Dr Turn left onto Victoria Chase Dr Turn left onto Brittany Chase Ct Destination will on the left
32810 - Orlando/Lockhart
Neighborhood
Riverside Elem
Wekiva High
Lockhart Middle
Additional Info
MAIN STREET RENEWAL LLC
Daniel Reyes
$0
$0
Additional Information
2
: Two
2025-10-17
https://www.msrenewal.com/home/6742-brittany-chase-ct/a1p4u000003vSsgAAE
https://www.propertypanorama.com/instaview/stellar/O6353424
: Public
1
1564
Financial
1
Listing Information
261548409
261011687
Active
2025-10-18T05:01:18Z
Stellar
2025-10-17T14:54:10Z
Contact Agent
Contact Us
407-615-0866