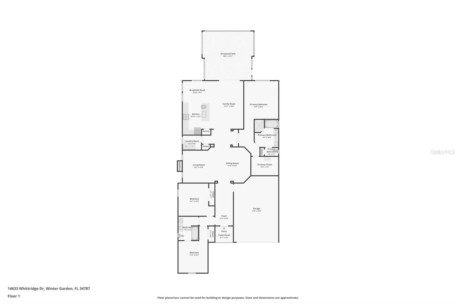
Beautifully updated single-story home in sought-after Signature Lakes at Independence! This 3-bedroom, 2-bath residence offers 2,224 sq. ft. of open living space with soaring high ceilings and new flooring throughout. The newly remodeled kitchen features solid-surface countertops, sleek cabinetry, and modern finishes. Enjoy a brand-new roof (2024) and a transferable home warranty through 2/23/2026, with the option to extend for added peace of mind. The oversized screened lanai with a cathedral ceiling adds valuable extra living space and opens to a new paver patio surrounded by lush landscaping. With no rear neighbors and a serene preserve view, you’ll love the privacy and tranquility. Located minutes from Hamlin’s shops, dining, and entertainment, A+ rated schools, and just 20 minutes to Disney! Independence offers resort-style pools, fitness centers, parks, trails, sports courts, and vibrant community events for the ultimate Florida lifestyle!
